Parking Info
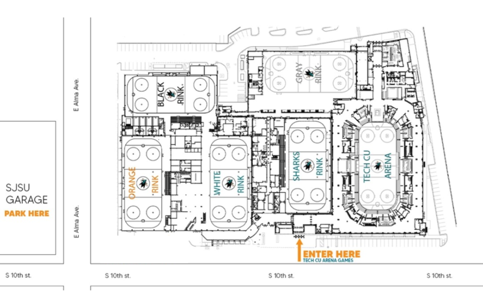
PARKING MAP AT TECH CU ARENA FOR SAN JOSE BARRACUDA GAMES
There are over 2,100 parking spaces located within walking distance of Tech CU Arena. Approximately 600 spaces are located on-site in the parking lots surrounding the Sharks Ice facility, with entry from either 10th Street or Alma Avenue. There are another 1,500 spaces in the SJSU parking garage directly across the street of Sharks Ice off 10th Street at Alma Avenue. Parking for Tech CU events are available (2) two hours prior to the scheduled start time of the event.

ADA PARKING/DROP-OFF
ADA-accessible parking is available at Tech CU Arena’s parking lot near the west and east entrance. Standard parking rates apply. There are 9 marked ADA-accessible parking spaces on the west side and 14 marked ADA-accessible spaces on the east side entrance of the Tech CU arena. Availability is based on a first-come, first-served. To use the accessible parking spaces, Tech CU Arena requires guests with disabilities to possess and display state-issued disability plates or a disability parking placard. Tech CU Arena honors current disability plates and placards from all 50 States, the District of Columbia, as well as Canadian Provinces. Placards must be always displayed on the vehicle while parked.
Due to limited ADA-accessible spaces, we reserve additional courtesy parking for disabled guests. Standard parking rates apply ($15). Please show parking personnel ADA placard to gain admittance to the reserved overflow ADA spaces.
Tech CU Arena provides accessible drop-off/pick-up areas on the facility’s west or east side. Please inform the parking attendant you are doing a drop-off. Then you are required to exit. To re-enter the onsite parking lot, inform the attendant or police officer you are picking up your guest with a disability. We recommend the driver return 30 minutes earlier to avoid street closures following the conclusions of an event. Guest Experience staff will be happy to assist guests with disabilities entering and leaving the facility.
EAST LOT PRE-PAID PARKING
Head to SpotHero to purchase pre-paid parking near the East entrance of Tech CU Arena.
SJSU PARKING GARAGE
At the SJSU Parking Garage, you will need to pay the event rate of $10 for your space. You may do this at the kiosks in the parking garage or through the Parkmobile App. Use Zone Code #9033.
You can also pre-purchase your parking pass by following the instructions below:
Click on the guest permit link: www.offstreet.io/location/DXF4CKZ4
Enter the license plate number
Choose license plate state
Click next
Select the Barracuda game that you want to purchase parking for
Enter payment information
Click park
Enter your email address for confirmation receipt (optional, but recommended)